来源: KD室内设计事务所 www.kd007.cc
低调而不平庸
个性而不张扬
古朴而不刻板
KD设计团队携手星瑞集团
星瑞仁家酒店
是星瑞国际健康产业集团
精心打造的精品商务酒店
打破传统精品酒店的固有印象
用美学和服务带来非凡体验




原本建筑为办公大楼,所有的房间格局都进行新的突破设计,局部加固,让整体建筑外观更为美观。贰店位于成都天府新区,在壹店的基础上,增加了宴会接待功能,可接待大小型各类的宴请活动,是一个全方位服务的精品酒店。
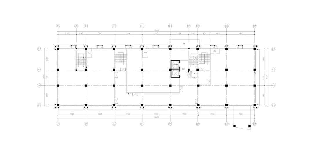
The First Floor
一楼
原始结构&平面布置


# 接待厅展示 #


考虑到酒店位于十字路口,接待厅位于十字转角处,L型的大堂,更为引人注目。作为整个酒店的门面,充满设计感的接待台,会给客人留下深刻的印象。灰白色搭配少许原木色,开阔宽敞的大堂,灯光柔和温暖,舒适的沙发座椅,让客人有宾至如归的体验。
#宴会厅展示 #

大型的宴会厅,可容纳上百人。相比于大堂接待厅,宴会厅的设计中融入了更多异域色彩。抽象地毯、树枝吊灯、更有诸多经典布置,多维度的元素遥相呼应,整个空间浑然一体。
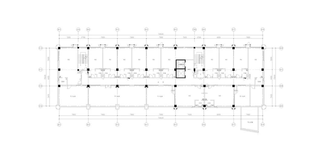
The Second Floor
二楼
原始结构&平面布置


# 餐厅展示 #

环境优雅的餐厅,可以为顾客带来愉悦舒适的用餐心情。KD设计团队注重当下时代潮流的设计新理念,融合多种设计元素,打造一个现代精致餐厅。
TheThird&Forth Floor
三四楼
原始结构&平面布置


# 单间展示 #

住宿房间温馨舒适,单间面积不大,但设计团队巧妙地将卫生间与卧室设置了玻璃和镂空的墙体,让视觉得到更好的延伸。
The Fifth&Sixth Floor
五六楼


# 标准间展示 #

酒店虽位于热闹的十字路口,但房间内呈现出一派安静祥和的气氛。温馨舒适的双人床,干净整洁地在等待着主人的到来,床头暖暖的灯光,让人卸下倦意,再美美的睡一觉,如家一般的温暖。
The Seventh Floor
七楼
原始结构&平面布置


# 过道展示 #

冷色调的走道,精致又自然,让整个空间看起来相得益彰。
项目信息
Project information
—
The project name
星瑞仁家酒店成都华阳店
The project address
成都天府新区
The project area
10000平米
Design agency
KD室内设计事务所
恺邸装饰
THE END
KD荣誉
服务热线:(023)86905033 | 微信咨询:17726639972 | 公司官网:www.kd007.cc | 公司地址:重庆市江北区北滨二路阳光城天澜道11号3栋27楼
COPYRIGHT © 2020 ALL RIGHTS RESERVED 渝ICP备17002114号
渝公网安备 50010302002846号 重庆恺邸装饰设计有限公司