KD软装,KD室内设计事务所,以原创设计打造私人定制
当前位置:首页 > KD软装

壹江郡第四套195㎡江景大平层

来源: KD室内设计事务所 www.kd007.cc

图片

图片




香港置地·壹江郡【第肆套】


本案位于重庆渝北区金州大道西,嘉陵江核心湾区,是连接江北、渝北、沙区的重要板块,拥有“一江两山七公园”稀缺资源,背靠最大的森林绿肺照母山,壹江郡拥有不可复制的稀缺城市资源和功能实用的产品设计,能够极大提升居住品质和生活品质。


设计师采用融合的zhong xing色调过度,融合时代与装饰艺术的元素,精心挑选不同材质样式的独特家具,这些不拘一格的单品家具,彰显着设计师独特的眼光,为住所注入别具一格的浪漫格调。



图片


01
空间改造
Space renovation
 宽幕尺度与奢华质感 

图片

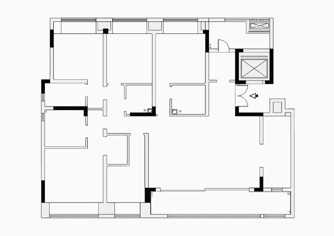
原始户型结构

图片

 改造后 

/BEFORE
原本的户型为四室两厅三卫,设计师没有做大的改动,通过细小的调整让功能分区更加合理。

/AFTER
扩大入户空间,同时将生活阳台与设备间分区。
将原本阳台改为中厨,原本的中厨改为西厨,增加岛台位置,与餐厅客厅融为一体。
阳台与室内合并,让客厅空间更大。
主卧重新规划衣帽间与卫浴。同时将次卧改为套间,将原本的次卫改为储物间,次卫放置在空间的中线位置,居家更方便。

02
品质空间 家的底色
A comfortable and leisurely life
 承载本真的生活状态 

图片

设计师以退为进,退后洗衣房,让归家自然而然有了门厅的仪式感,也有了充足的收纳空间。

温暖的颜色加上精致的入户装饰细节,更增加了空间的秩序美。

图片

图片

举目远眺,江河美景尽收眼底,沐浴在暖光下,静静享受“矮纸斜行闲作草,晴窗细雨戏分茶”的悠闲自得。
吊顶的弧形处理隐藏住阳台的横梁,搭配沙发的温润轮廓,定制柜与岩石材质的软硬与色彩的冷暖协调,空间在柔和的光影颜色中散发着慵懒的格调。

图片

图片

图片

客厅的一角,设计师利用户型的三角区造景,将室外景观引入室内,光影透过纱帘在室内游走,回归到生活的自然艺术中来。让空间功能性与美观性并存。

‍‍‍‍‍‍‍‍‍‍‍‍‍‍‍‍‍‍‍‍‍‍‍

图片

可移动的边柜,方便未来场景的变换。木饰面与石材的花纹色彩结合,构建了一个简约艺术,充满温度格调的居所。



03
随性自在 纯粹简单
Free spirited·pure and simple
 在空间中游目骋怀 

图片

图片

在四通无碍的空间格局中,空间极具“呼吸感”,随性自在,张弛有度。木质的吊顶与墙面线条,犹如框入室内浑朴自然的一景。桌椅的线条与意趣,与空间打造出的”呼吸感“相契合。

图片
宽敞明亮的餐厨一体化设计,让整个空间方正宽敞,白色与木色让空间平静轻盈,现代风的无主灯设计演绎出极简风格,无论是大面积的颜色还是材质,都在细节上最求简洁和质感的平衡。

   
04
至简之美 柔和之韵
Darling Point Apartment
 恬静舒适的静谧空间 


图片

图片

主卧开敞通透,观景之余,可以尽情的沐浴自然光,窗临江景,在柔美温婉的暖白中,墙面流动的线条装饰,将轻与重巧妙融合,别具中和之美。

图片

主卧衣帽间去除多余的表面装饰,回归纯粹的休憩氛围和静谧空间,简单的几点颜色语言,即延展了风格的简约利落,又给人温润澄澈的内在感受。
图片
老人房的打造以简洁淡雅为主。简单的空间肌理,相互协调而一致的视觉语言,串联成卧室最本真的休憩氛围。
图片
图片

图片

图片

儿童房以明媚鲜艳的颜色,打造趣味活泼舒适自得的生活环境。

图片

在木色柔雅圆润中,加入踢脚的隐藏灯带,烘托出方正的线条之美,让空间充满流感与张力。

KD荣誉

IDS优胜奖
IDS优胜奖
IDS最具空间表现奖
银蝴蝶奖
金堂奖
金瓦奖
新势力榜
新商业空间大奖
中国住宅优胜奖
室内设计联合会理事
IDS优胜奖
IDS优胜奖
银杏金鸟奖
设计师等级认证书
金蝴蝶奖
祝融奖佳作奖
祝融奖酒店空间二等奖
祝融奖2021佳作奖
购物狂十佳装饰品牌
十佳品牌人物2022

服务热线:(023)86905033  |  微信咨询:17726639972  |  公司官网:www.kd007.cc  |  公司地址:重庆市江北区北滨二路阳光城天澜道11号3栋27楼

COPYRIGHT © 2020 ALL RIGHTS RESERVED 渝ICP备17002114号 渝公网安备 50010302002846号 重庆恺邸装饰设计有限公司