来源: KD室内设计事务所 www.kd007.cc
项目名称:阿尔勒·阳光
设计面积:400²
设计风格:自然之家
项目类别:联排端户
主创设计师:张虎
设计机构:KD室内设计事务所

本案小区坐落于南山山脉脚下,是以艺术家梵高的故乡法国南部普罗旺斯省的阿尔勒小镇为规划蓝本,一处阳光明媚的地段,环绕于城市与森林之中,在南山山脚下憩息而居,修养生息,而我们设计主题便呼之于处[阿尔勒·阳光]。

因环绕于城市与森林之间,有阳光,又适合隐居,我们便取了反向概念,阿尔勒·阳光100为设计主题。而家对每个人而言,寄托的情感肯定是不一的,当我们定义这个设计主题后,业主夫妻俩都表示很满意,甚至很兴奋,因为在渝中区居住了很多年,此次搬到山脚下的森林,更多的是考虑为后半生养老做准备,很巧合的达成了共识,也满足了业主夫妻俩对于家的憧憬。

家庭成员:母亲、夫妻俩、儿子
楼层:四楼
因本案是业主为养老而准备的,故在后面,我们以自然、质朴、简单明了为核心思想,材质的选择,白色乳胶漆、仿木地砖等,都以自然为先,引进阳光通达室内,为业主营造一个有情感,有阳光的自然之家,也是设计的初衷。
原始结构图/Original structure diagram
负一楼原始结构图

一楼原始结构图

二楼原始结构图

三楼原始结构图

改动后的平面布置图/The modified floor plan
改动后负一楼平面布置图

改动后一楼平面布置图

改动后二楼平面布置图

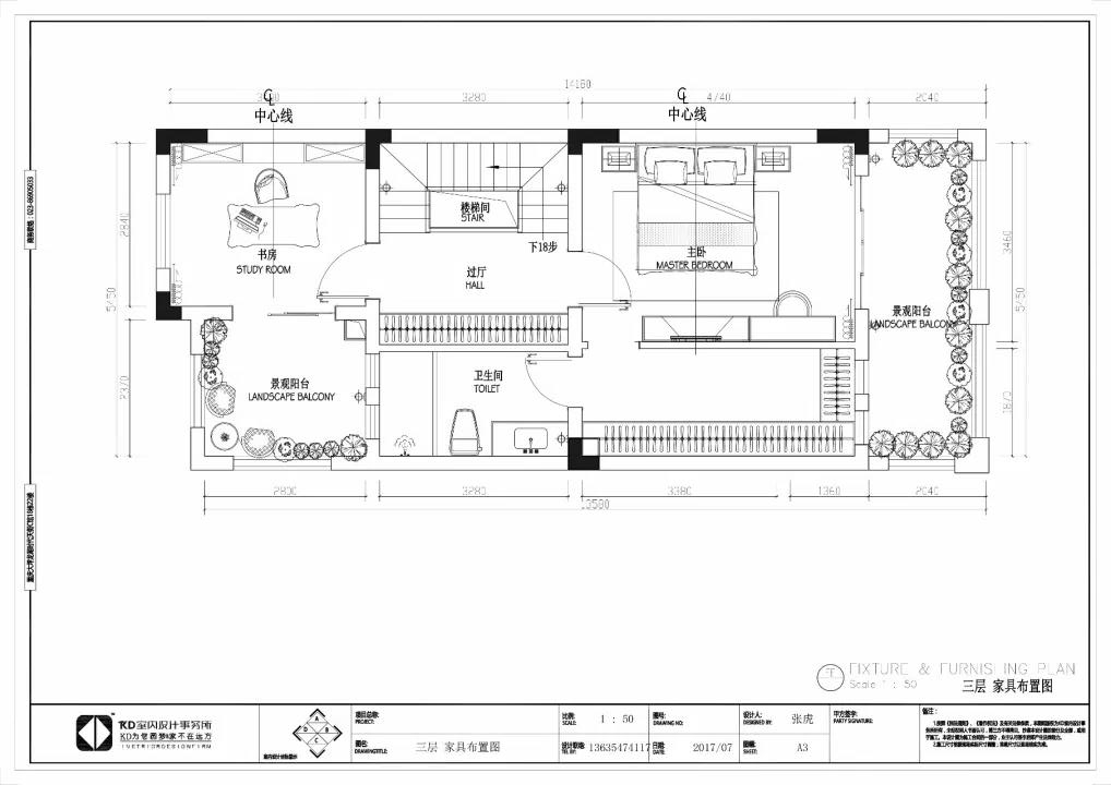
改动后三楼平面布置图

效果图赏析/Effect picture appreciation
负一楼
休闲娱乐区,供朋友聚会等

一楼
客厅+户外早餐区+茶台



二楼
儿子房+老人房+家庭厅(阳光露台和洗衣区)

三楼
主卧+书房


远离城市喧嚣,又能随时感受到城市的繁华,累时归隐森林之中,大概就是最理想的生活方式。
THE END
422m2 | 中式查看详情
80m2 | 其他查看详情
166m2 | 自然查看详情
KD荣誉
服务热线:(023)86905033 | 微信咨询:17726639972 | 公司官网:www.kd007.cc | 公司地址:重庆市江北区北滨二路阳光城天澜道11号3栋27楼
COPYRIGHT © 2020 ALL RIGHTS RESERVED 渝ICP备17002114号
渝公网安备 50010302002846号 重庆恺邸装饰设计有限公司