来源: KD室内设计事务所 www.kd007.cc
生活无需假装
时尚要有态度
用沉稳包容的咖啡色打造居住氛围
将时尚质感结合现代材质与装饰技巧
让每一处细节美都深入灵魂
优雅生活从此开启
Negative Second Floor 负 二 层
改造前 x 改造后


负二层功能划分为保姆房以洗衣区等。
Negative First Floor 负 一 层
改造前 x 改造后


负一层功能规划为客房、影音室以及休闲区。
· 休 闲 区 ·
Leisure Area

双面采光的休闲区,拥有绝佳的视野,沙发背后就是户外阳台,风景一览无遗。旁边整墙的书柜,打造出可以静心潜读的空间,这是更高层次的享受。
The First Floor 一 层
改造前 x 改造后


一层功能划分为画室、女儿套房以及两间客房。
· 女 儿 房 ·
The Daughter's Room

女儿房一改刻板印象,灰色调时尚摩登,优雅精致的线条装饰空旷的墙,融入细腻的设计心思。圆环形床头灯,在夜晚好似一汪月,温柔照亮小朋友的梦。
The Second Floor 二 层
改造前 x 改造后


二层功能划分为客厅、餐厅、厨房以及茶室等公共区域。
· 客 厅 ·
Living Room

本案业主倾向于稳重且轻奢的居住空间,希望空间具有品质感,色系采用咖色和白色进行高比例分割,提升空间框架色彩感和空间延展感,设计手法仪式感强,意在让空间通透及表现空间尊贵感以及形体关系的色彩对比,从而加大视觉感官效果和空间品质。
· 餐 厅 ·
Dinning Room

餐厅依然延续客厅的色调,咖啡色带来就餐的温馨氛围。圆形餐桌提升餐厅的视觉高级感,也有圆圆满满的美好寓意。去除繁复的装饰,于细节处下笔,设计风格庄重而内敛,给人温馨、时尚的视觉感受。
· 茶 室 ·
Tea Room


身处繁华的都市太久,便是更加渴望静怡的身心归处。透过玻璃阳光倾洒而下,茶室外,青竹悠扬绿意盎然,茶室里的木质家具仿若散发出阵阵梨花香木之味,约三五好友,煮茶论道,享受惬意的人生。
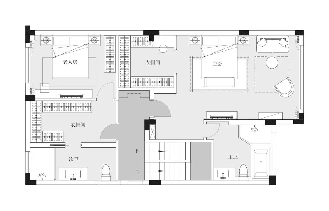
The Third Floor 三 层
改造前 x 改造后


三层功能划分为主人套房和老人套房。
· 主 人 房 ·
The Master's Room

卧室风格延续客厅的轻奢风,稳重柔和的配色,减少过多的造型设计让空间打造更加舒适简洁的卧室环境。在这里可以放松身体每一处神经,时间变得缓慢,花点时间与自己对话,人生会有更多领悟与期许。
The Fourth Floor 四 层
改造前 x 改造后


四层为阁楼,功能划分为储物室、会娱室以及健身区。

「TRUST」
· 致 谢 业 主 ·
再次感谢如此优秀的客户通过严格筛选,最终选择信任我们KD人来帮助他们实现美好的居住梦想。
我们始终坚信,我们一定是一群能创造更多美好空间、美好生活的KD人。从过去、到现在、期未来,以原创设计,敬美好生活。
项目信息
Project information
—
The project name
水天花园
The project address
重庆北碚区
The project area
480平米
The design of style
轻奢风
Design agency
KD室内设计事务所
恺邸装饰
-THE END-
422m2 | 中式查看详情
80m2 | 其他查看详情
166m2 | 自然查看详情
KD荣誉
服务热线:(023)86905033 | 微信咨询:17726639972 | 公司官网:www.kd007.cc | 公司地址:重庆市江北区北滨二路阳光城天澜道11号3栋27楼
COPYRIGHT © 2020 ALL RIGHTS RESERVED 渝ICP备17002114号
渝公网安备 50010302002846号 重庆恺邸装饰设计有限公司