来源: KD室内设计事务所 www.kd007.cc


-
RESIDENCE
-
推窗远望
城市的天际线
无限风光尽收眼底
清风与阳光
都可兼得
繁华的都市与静谧的私境
尽收眼底
我们对理想生活的追求
不在于一座房
也不在于一片林
而是选择适合自己的生活方式
如休闲美式风这般
寻一份慵懒与自在
让岁月安静地自然地盛放
从明天起
做一个幸福的人
喂马 劈柴
周
游
世
界
—
DECONSTRUCTION
透视解构

竣爵堡 | RESIDENCE | 2020
The address:重庆渝北区
The project area:500㎡
The Design style:休闲美式
Transformation features:本项目为位于重庆渝北区竣爵堡的殿堂级传世别墅,KD室内设计团队根据业主居住需求,将整个空间定位为休闲的美式格调,自然的田园生活情趣,摒弃不必要的形体堆砌,以功能性为优先考虑,追求舒适,兼顾典雅,注重起居品质,又不过分张扬,演绎出美式的经典魅力。
「NEGATIVE SECOND FLOOR 」
负二楼
—
原始结构&平面布置


* BEFORE
原本负二层为地下室,阴暗潮湿,采光极差,没有空间区域的具体规划。
* AFTER
通过设计师的巧妙设计,负二层设计了挑空,以及用采光井来完美解决采光与潮湿的问题,让负二层和负一层拥有良好的通透性。将功能合理规划为休闲区和娱乐区、吧台区及车库。
“经典魅力”
Classic charm
「会客厅」




挑空设计让楼层上下可以随时互动,加载出更多欢快而亲切的生活场景,令仪式感与互动性大大增强。经典的原木定制,让空间温润而大气。大面积落地窗,不仅引光景入室,形塑通透敞朗的空间感,更模糊室内外界线。
“一方私密之地”
A private place
「吧台区」

吧台区位于会客厅一侧,利落的竖型吊灯,使空间更具张力,让原本开阔的空间不再单调。灰色和原木色的搭配,使空间干净、温暖。邀一群志同道合的朋友小聚,尽情享受美酒。这里也是男主人的一方私密空间,是独自发呆放空的最佳去处。
“让房子会呼吸”
Make the house breathable
「采光井」

采光井不仅是功能性构建,服务于地下室的通风采光功能,更主要的还是通气,成为会呼吸的房子,使房子充满生机和活力,赋予房子生命。KD设计团队巧妙的在屋顶开设窗户进行采光,让室外光线映射在室内空间中,负二层和负一层的视野也变得更为开阔。
「NEGATIVE FIRST FLOOR」
负一楼
—
原始结构&平面布置


* BEFORE
原始结构中,负一层并不存在。
* AFTER
考虑到负二层的空高较高,对负二层进行现浇,划分为负一层和负二层。负二层挑高的设计后,负一层功能包含健身区、洗衣区、客房等。
“生活的乐趣”
The joys of life
「过厅」


利用挑高,在有限的空间里设计了过厅。整个过厅的陈设简单明了。坐在舒适柔软的美式大沙发上,还可以与楼下形成良好的互动,整个空间都变得有趣味。
「 FRIST FLOOR 」
一楼
—
原始结构&平面布置


* BEFORE
一层,集花园、客厅、餐厅、厨房等功能为一体。
* AFTER
改变电梯井的位置,打掉周围的墙,让餐厅区域更加宽敞开阔。设计单独的西厨区域,满足多人用餐需求。打掉厨房外的墙,连接露台,让中厨空间更大。将电梯井设计在楼梯间旁,让餐厅客厅更开阔。
“归家的仪式”
The ritual of coming home
「门厅」


门厅是家里使用频率较高之处,功能集中:待人接物、换衣换鞋。大面积原木壁柜,不仅外观看起来简约大气,而且拥有强大的收纳空间,能够随手放置钥匙、包包等随身物品,极大的方便生活,提升整体舒适度。
“骨子里的尊贵感”
An innate sense of dignity
「客厅」




客厅是每个家的交流中心,最能体现主人的品位与温情。沉稳大气的色调,柔和的阳光洒落客厅,坐在舒适的美式沙发上,静静享受诗意般的生活,美哉!
定制的实木电视墙,呈现出简约的美式经典壁炉造型,搭配深色的电视柜,将美式演绎得原滋原味。




美式风格的家居,自然少不了休闲惬意的家具来搭配。蒂芙尼蓝的皮艺沙发,搭配两张米白色布艺沙发,再配上一张长型的茶几以及两张椭圆形边几,美式风格的大气显得干净利落。
“浪漫的就餐氛围”
Romantic dining atmosphere
「餐厨」



客厅背后就是相对独立的餐厨区域,经典的实木圆桌搭配几把舒适的皮艺加布艺餐椅,优雅的设计效果瞬间提升了空间品质。
利用墙角定制了一排原木色橱柜,嵌入烤箱,设计为90°一体式吧台,减轻厨房的负担的同时,也拓展了餐厅的功能性和实用性。

中厨在材料选择上以天然实木、石材为主,自然、温暖,以简洁、清晰的线条,造型简单却凝聚美国的独特文化,既实用又美观,不刻意追求华丽的设计,演绎美式休闲之美,让人在优雅的烹饪时光里重温美式奢雅的情调。
「 SECOND FLOOR 」
二楼
—
原始结构&平面布置


* BEFORE
二层为居住层,原本为两个卧室。
* AFTER
移动电梯井的位置,打掉多余的墙体,合理规划空间,设计为家庭学习区以及女儿房套房和老人房套房,集衣帽间和卫生间等功能为一体,让每个家庭成员生活更便捷。
“稳重而雅致”
Sedate and elegant
「老人房」





老人房较为稳重复古,但私密性和功能舒适性都是作为设计的第一考量因素。天然木材的床头背景墙,散发出柔和的格调,舒适的软包床头,衬托床品更加清丽,成套的柔软布艺更能保证睡眠的质量。大面积落地窗可以引进更多光源,迎接清晨第一缕阳光。
“温柔的浪漫”
Gentle Romance
「女儿房」




夏威夷的热情从墙面拂来,美式经典吊顶在设计师的手中温柔灵动。女儿房运用大面积淡妃色与香槟金创造出美式艺术灵魂的温柔浪漫,良好的硬装基础与精致软装搭配,将多种经典风格的交接糅杂完美呈现,打造最具包容舒适的美式休憩空间。
“享受自律的美好”
Self discipline is happy
「公共学习区」




大面积的一体化定制实木书桌书柜,存取书籍资料都能伸手完成,非常方便。宽敞的书桌,可供多人同时学习办公,而又互不打扰。与书桌相邻的位置,摆放了孩子喜欢的钢琴,学习之余,培养兴趣爱好。
「 THIRD FLOOR 」
三楼
—
原始结构&平面布置


* BEFORE
三层为居住层,被电梯井和楼梯分割为两个大区域。
* AFTER
移动电梯井的方向,将这一层楼分为主人休息区以及衣帽间书房区。
“定制品味生活”
Savoring life
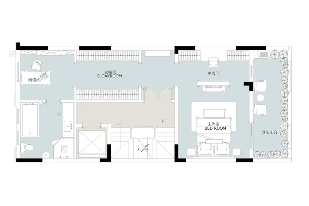
「主人套房」




这一层楼作为主人居住专属区域,自由活动区和休息区隔而不断,单独阅读区、衣帽间和主人房彰显着主人高贵的身份。延续整体的大气美式风,以原木色为主,点缀以橙色、灰色、粉色、浅绿等,简约高品质生活,从这里开启。



采用隔断的形式对主卧空间进行切割,隔出一间更衣间,同时形成一面背景墙,让卧室层次更丰富。梳妆区也设在这里,便于日常换衣梳妆。

设计师巧妙利用走廊的空间,打造出高级定制的独立衣帽间,整齐有序,让走廊也可以丰富有趣。



衣帽间的尽头是书房,私密性和开放性共存。梁实秋说,每个主人都应该拥有一间书房,给自己一片精神自留地。大容量的收纳柜,可以收藏业主珍爱的书籍和手办,舒适的美式座椅,为独处时光提供保障。

洗手间不仅仅满足了日常的洗漱功能,还是屋主生活层次、个性品味的折射。宽敞的洗漱台,大大的浴缸,玻璃门隔断的淋浴区与卫浴区各司其职,走进浴室,用泡澡作为忙碌一天的结尾,缓解疲劳,放松身心。
「 THE LOFT 」
阁 楼
—
原始结构&平面布置


* BEFORE
这一层原本为阁楼。
* AFTER
设计师利用房屋的建筑特性,让室内空间利用率最大化。
“浮生半日闲”
Leisurely and carefree mood
「茶室」


利于阁楼楼梯间的位置,打造成茶室和书房。约三五好友,煮茶论道,一盏香茗,余香缭绕,品鉴之间,任时光缓缓流淌。时光荏苒,生活最终回归简单与平静。
“书卷气息四溢”
The smell of books
「书房」


虽然阁楼空间不规则、空间狭小,这些缺点正是其魅力所在。茶室往里走,就是书房了,这里是获得智慧思考人生的地方。一扇大大的老虎窗,可以保证充足的阳光和日照。摆放宽敞的书桌与靠椅,搭配嵌入式的书架与储物柜,书卷气息扑面而来。
-THE END-
422m2 | 中式查看详情
80m2 | 其他查看详情
166m2 | 自然查看详情
KD荣誉
服务热线:(023)86905033 | 微信咨询:17726639972 | 公司官网:www.kd007.cc | 公司地址:重庆市江北区北滨二路阳光城天澜道11号3栋27楼
COPYRIGHT © 2020 ALL RIGHTS RESERVED 渝ICP备17002114号
渝公网安备 50010302002846号 重庆恺邸装饰设计有限公司