来源: KD室内设计事务所 www.kd007.cc


-
RESIDENCE
-
在空间规划和视觉艺术上
追求更完美的居住环境
演绎不同空间的美学考量
还原生活的最真场景
创造和谐的空间秩序
一种有趣味有感知和被认可的场域
在方寸之间
诠释优雅与从容
龙湖开元 | residential | 2020
The address:重庆沙坪坝区
The project area:152㎡
The total cost:70w
The Design style:现代轻奢风格
Transformation features:幸福的三口之家,爸爸负责赚钱养家,妈妈负责貌美如花,孩子负责快乐成长,每个人各司其职,幸福和谐,让这个家里充满了欢声笑语。
时尚精致的女业主,对生活品质要求比较高。男业主去上班,孩子去上学后,就开始了自己的丰富生活。喝杯红酒,泡个澡;约好友逛街,喝下午茶……不同的生活体验,总是让人感到愉悦。
“在这个家,我想让美来得更极致、更纯粹。”
本案整体为现代轻奢风,在原始户型无需改动的情况下,设计师根据不同材质的特点和属性进行拆分融合,使整体设计具有连贯性。化繁为简的经典设计,减去多余的色彩,结构和线条彼此呼应。
Project Analysis 方案分析
—
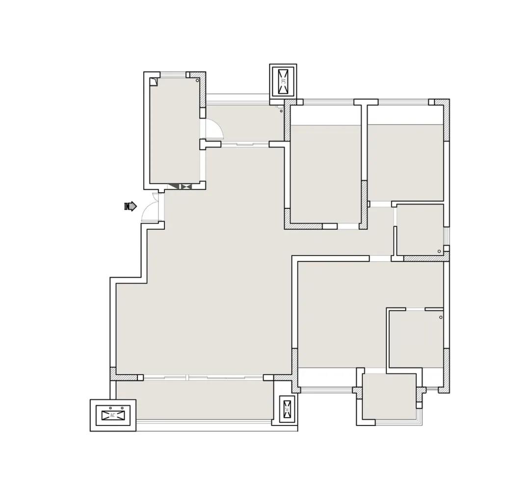
原始结构&平面布置


/BEFORE
本案户型为四室两厅两卫,户型较为方正,设计师未做过多结构改动。
/AFTER
1、打掉所有卧室的飘窗,增加空间使用面积。
2、将原本的客厅区域,一分为二,设计为开放式书房和客厅。
“温暖而亲切”
Warm and kind
「客 厅」




客厅区域让人温暖而亲切,大量木色与白色交相呼应,少许黑色和灰色作为点缀,使整个空间更有层次感。舒适的转角沙发与柔软的地毯,为家庭提供了温柔的亲子时光。高低错落的组合式圆形茶几,造型独特、充满个性,上演着空间材质的和谐碰撞。




电视作为客厅空间核心,搭配定制电视柜,将部分柜子设计为开放式,放上书籍或者装饰物让空间更活跃,既保证收纳空间,又让空间氛围不压抑。简洁平整的木饰面墙面,丰富空间造型。隐形灯带,既美观,又能增添空间层次。
“工作陪伴两不误”
Both work and company
「开放式书房」



客厅与书房连为一体,使其更有宽阔的感觉,也更加通透。大幅落地窗的设计,不仅便于采光,而且能让窗外的风景尽收眼底。


开放式的书房,以暖色调的书柜为背景,在灯光的烘托下,温暖而有质感。保留与客厅的良好互动,在书房办公的男业主,也可以很好的与客厅玩耍的妻子与孩子交流,享受一家人的快乐时光。
“用餐仪式感”
The ritual of the meal
「餐 厨」



女主人最看重的区域是餐厨区,而餐厅,永远是家里气氛最活跃的地方。考虑到餐厅区域有厨房和原始生活阳台的滑门,此材质较为透明,需要用大量的浅色木纹增强空间的完整性,所以在餐厅的酒柜处理方式是使用了木纹和玻璃材质的结合,从而做到形式唤醒功能。

厨房不仅是煮食的地方,还是生活品质的彰显。简约大气的厨房,下方设计成深灰色储物柜,实用性和装饰效果都堪称完美,上方墙面定制了一组白色的橱柜,再配上白色的大理石台面,轻松营造出干净清爽的烹饪环境。
“干练又精致的生活态度”
Capable and refined attitude to life
「主 卧」




主卧整体色调干净简洁,空间用艺术漆处理后更加体现出质感,充满设计感的简约吊灯,垂挂在床头,展现出主人干练又精致的生活态度。而主卧最大的亮点是跟主卫之间的光影关系,令空间添加丰富的层次感。
“自由地成长”
Free to grow
「儿 童 房」


考虑到孩子在不断的成长,儿童房的设计较为简单,贴心的业主想等孩子渐渐长大后,可以慢慢添加一些自己喜爱的物件。
“美好的睡眠时光”
A good sleep time
「次 卧」


次卧是为父母预留的房间,偶尔也可作为客房使用。简约的风格,沉稳的氛围,柔软的床品,让睡眠时光更加美好。
“变幻莫测”
It's unpredictable
「卫 生 间」

主卫的区域功能层次鲜明,最为特殊的就是浴缸区域,是由原来的院馆抬高后改造而成。极具魅力的光影效果,会随着生活需求而进行变化。
“干净的味道”
The feeling of cleanliness
「洗 衣 房」

生活阳台打造而成的洗衣房是让业主很开心的地方,空间散发出来干净整洁的味道,最能体现出业主的生活好习惯。
-THE END-
422m2 | 中式查看详情
80m2 | 其他查看详情
166m2 | 自然查看详情
KD荣誉
服务热线:(023)86905033 | 微信咨询:17726639972 | 公司官网:www.kd007.cc | 公司地址:重庆市江北区北滨二路阳光城天澜道11号3栋27楼
COPYRIGHT © 2020 ALL RIGHTS RESERVED 渝ICP备17002114号
渝公网安备 50010302002846号 重庆恺邸装饰设计有限公司