来源: KD室内设计事务所 www.kd007.cc


-
RESIDENCE
-
家
不止是关于空间的简单故事
因为
当空间被称为家
那必定是
空间、时间与人之间交融的故事
设计师将本案打造为简约现代风
不仅是品质生活的诗意代表
更是越来越多的都市人
秉持的生活新主张
DECONSTRUCTION
透视解构

华宇御澜湾【第玖套】 |RESIDENCE| 2020
The address:重庆渝北区
The project area:180㎡
The total cost:100w
The Design style:现代简约风格
Transformation features:本项目位于重庆渝北区华宇御澜湾的低密度纯别墅,KD室内设计团队根据业主需求将整个空间定位为舒适简约的现代风格,设计师通过人性化的思考,打造出功能性完整的生活空间,让家里的每处角落都成风景,尽享舒缓的时光,细品生活的美好。
「 ROOFTOP GARDEN」
屋顶花园





屋顶是浪漫惬意的空间,在繁星点点的星空之下,在远离城市喧嚣的平台之上,可以在屋顶和爱人交换心情,也可以俯瞰城市的烟火与落寞,让思绪隐没在城市的天际线。在这个私密之地,喝喝下午茶,种种花草树木,远离城市喧嚣,享受恬静时光。
「 FRIST FLOOR 」
一楼
—
原始结构&平面布置


/ BEFORE
一层功能划分为客厅、餐厅、厨房以及老人房。
/ AFTER
由于一层原始结构较为方正,功能划分合理,设计师并未在结构上做大挑战。只是将老人房与阳台之间的滑门拆掉,封闭起来,让卧室更具有私密性。
“舒适从容”
Nice and easy
「客厅」



客厅呈现出宽敞明亮的现代风,给人的第一印象是简约且时尚的,不是简单的“堆砌”和平淡的“摆放”,它凝结着设计师的独具匠心,既美观又实用。没有繁琐的装潢和过多家具,在装饰与布置中最大限度的体现空间与家具的整体协调。



客厅的家具在承载日常生活的实用功能外,同样也是空间中美好的细节呈现。宽敞柔软的布艺沙发,简约大气的大理石茶几,材质的和谐碰撞,让空间丰富有趣。



客厅和餐厅相通,构成和谐的整体空间,设计师采用浅驼色为主色调,利用简约大气的吊顶凸显造型方面的几何结构。
“爱与美食共融”
Love and food
「餐厨」




在空间布局上,设计师在原有基础上,大胆地将封闭式厨房打开,做成了全开放的样式,与餐厅客厅连为一体,令整个会客空间的实用性以及开阔度增加了不少。宽敞明亮的餐厨区,也兼具了会客厅的功能,动线循环而流畅,自如惬意。


在设计简洁而功能完备的西厨里,细长的岛台,时尚的吧椅,让家人也能惬意地参与准备食材,吃一餐早饭,开始元气满满的一天。
“探索艺术美学”
Exploring the aesthetics of art
「楼梯」


楼梯是探索上下空间自由的通道,它不仅承载了建筑空间的艺术美学,还承载着生活的重量。精致璀璨的水晶吊灯倾泻而下,透明玻璃护栏增加空间通透性,让楼梯化身为极具线条感的空间装饰品。
「 SECOND FLOOR 」
二楼
—
原始结构&平面布置


/ BEFORE
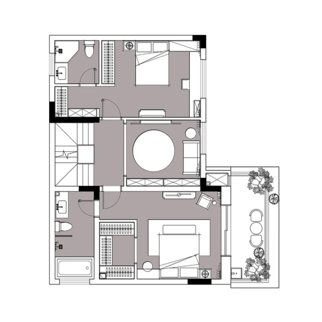
二层功能规划为儿童房套房、主卧套房、多功能房。
/ AFTER
用玻璃滑门将主卧与景观阳台划分开,保留可以观赏美景的室外空间;将原本的起居室改造为多功能房。
“舒缓的睡眠空间”
Soothing sleeping space
「主人房」




主卧的空间布置宽阔简洁,延续现代风格的特点,并无太多装饰,灯带散发出的灯光柔和温暖,床头背景墙柔软又隔音,梳妆台摆放在床头,可一桌两用,不仅是梳妆台也是床头柜。
“满足多种需求”
For a variety of needs
「多功能房」

带书柜和休闲区的多功能房,“舒缓”是空间的关键词,设计师别出心裁的在书房设计了一整面镜子,让较为狭长的书房看起来更显宽敞。业主希望在这里可以随意走动,亦可随时停下,拉出把椅子发个呆、缓个神。
“温暖甜蜜”
Warm and sweet
「女儿房」




儿童房温馨而精致,茱萸粉色的背景墙与浅粉色的床品交相呼应,为孩子打造的书桌在窗前可以拥有最好的自然光,尽力呵护孩子的视力。透过玻璃窗,可以欣赏室外郁郁葱葱的景色。
“精致的生活态度”
Exquisite attitude to life
「卫生间」


卫生间用简单的线条营造出了干净清爽的环境,在整洁的空间里开始新的一天,或者在睡觉前放松一下,都是完美的选择。
-THE END-
422m2 | 中式查看详情
80m2 | 其他查看详情
166m2 | 自然查看详情
KD荣誉
服务热线:(023)86905033 | 微信咨询:17726639972 | 公司官网:www.kd007.cc | 公司地址:重庆市江北区北滨二路阳光城天澜道11号3栋27楼
COPYRIGHT © 2020 ALL RIGHTS RESERVED 渝ICP备17002114号
渝公网安备 50010302002846号 重庆恺邸装饰设计有限公司