来源: KD室内设计事务所 www.kd007.cc

形式的简单纯净和重复
是现实生活的内在、韵律
人们肉眼所见到的日常生活
本质上并没有那样丰富多彩
在简单枯燥的外表后面
是人们对生活和社会秩序的渴望和追求
用克制的力量战胜一切的形式感
去寻找简约带来的沉淀
感受内在的秩序和微妙的平衡感
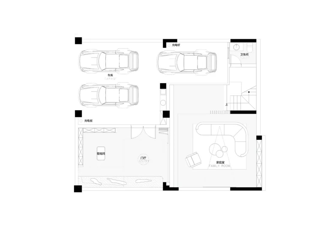
Negative Second Floor 负 二 层
改造后

负二层功能划分车库、入户、鞋帽间以及家庭室等空间。
· 入 户 ·
Household Entry

暖色调的入户,让人归家即有温馨感。梯步的设计,增加了回家的仪式感。精致的小景,整洁的收纳,家的第一道风景就在眼前。
· 家 庭 室 ·
Leisure Area


家庭室的存在,让生活变得多元化。舒适的大尺寸沙发,大面积的书柜,为空间带入悠闲自在的情境。
Negative First Floor 负 一 层
改造后

负一层功能划分影音室、舞蹈室、健身区以及客房。
· 舞 蹈 区·
The Dance Area

舞蹈区和健身区相连,可相互切换。开阔的空间里,自由跳跃,或弹奏一曲,或翩翩起舞。在这静谧的空间环境里,放空自我,寻找真我。
The First Floor 一 层
改造后

一层功能划分客厅、餐厅、厨房、茶室、老人房、户外花园等。
· 客 厅 ·
Living Room



客厅确保家庭成员活动时享有舒适的空间外,以围合的组合方式,强调谈话交流的亲密感与舒适感,深咖与暖白色调的材质和线性灯展现了空间的无限延伸感。
· 茶 室 ·
The Tea Room

穿过餐厨区可望见品茗区,延伸整体空间同时又保留相对的隐秘性,自然形成通透又独立的特性。在这个隐秘而独特的空间里,品一杯香茗,思索未来的生活。
The Second Floor 二 层
改造后

二层功能划分为主卧套房以及两间儿童房、书房等。
· 主 卧 ·
Master's Room

主卧大面积的落地窗,即享窗外美景,从繁华闹市中抽离,只有当下的宁静与美好,结束一天的疲惫,在这里重新演绎生活的千姿百态。
· 儿 童 房 ·
Children's Room

儿童房细致地关照了孩子在日常生活的方方面面。学习、玩耍、生活,一样不差。摈弃传统的卡通风格,以沉稳的灰色基调铺开,搭配裸粉、咖色作点缀,赋予空间的甜美雅致。
「TRUST」
· 致 谢 业 主 ·
再次感谢如此优秀的客户通过严格筛选,最终选择信任我们KD人来帮助他们实现美好的居住梦想。
我们始终坚信,我们一定是一群能创造更多美好空间、美好生活的KD人。从过去、到现在、期未来,以原创设计,敬美好生活。让众多热爱生活之人,因恺邸生活更美好幸福。
项目信息
Project information
—
The project name
龙湖·紫云台【第肆套】
The project address
重庆北碚区
The project area
450平米
The design of style
现代风格
Design agency
KD室内设计事务所
恺邸装饰
— END —
422m2 | 中式查看详情
80m2 | 其他查看详情
166m2 | 自然查看详情
KD荣誉
服务热线:(023)86905033 | 微信咨询:17726639972 | 公司官网:www.kd007.cc | 公司地址:重庆市江北区北滨二路阳光城天澜道11号3栋27楼
COPYRIGHT © 2020 ALL RIGHTS RESERVED 渝ICP备17002114号
渝公网安备 50010302002846号 重庆恺邸装饰设计有限公司