来源: KD室内设计事务所 www.kd007.cc
阳光轻洒于层层绿植
空气飘散着缕缕花香
四季如画悠然悦赏
屋里屋外温暖而惬意的世界
这大概就是对心中“理想家”的想象
……
设计师将本案打造为简约现代风
不仅是品质生活的诗意代表
更是越来越多的都市人
秉持的生活新主张
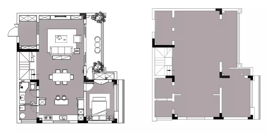
一楼
· The First Floor·
平面布置图&原始结构图

一层功能划分为客厅、餐厅、厨房以及老人房。
·客厅展示·


本案为宽敞明亮的现代风,没有繁琐的装潢和过多家具,在装饰与布置中最大限度的体现空间与家具的整体协调。客厅和餐厅打通,构成和谐的整体空间,设计师采用浅驼色为主色调,利用吊顶和灯带凸显造型方面的几何结构。
二楼
· The Second Floor·
平面布置图&原始结构图

二层为儿童房、主卧、书房以及起居室。
·儿童房展示·

如果说客厅的布置处处简约大气,儿童房就是温馨无比,浅粉色的背景墙与木地板交相呼应,为孩子打造的书桌在窗前可以拥有最好的自然光,尽力呵护孩子的视力。
·书房展示·

设计师别出心裁的在书房设计了一整面镜子,让较为狭长的书房看起来宽阔了不少,另一面是整壁的书柜,用以满足业主的存书需求。
·主卧展示·

主卧的空间布置宽阔简洁,延续现代风格的特点,并无太多装饰,灯带散发出的灯光柔和温暖,床头背景墙柔软又隔音,梳妆台摆放在床头一桌两用,不仅是梳妆台也是床头柜。
项目信息
Project information
—
The project name
华宇御澜湾第玖套
The project address
重庆两江新区
The project area
180平米
Design agency
KD室内设计事务所
恺邸装饰
THE END
422m2 | 中式查看详情
80m2 | 其他查看详情
166m2 | 自然查看详情
KD荣誉
服务热线:(023)86905033 | 微信咨询:17726639972 | 公司官网:www.kd007.cc | 公司地址:重庆市江北区北滨二路阳光城天澜道11号3栋27楼
COPYRIGHT © 2020 ALL RIGHTS RESERVED 渝ICP备17002114号
渝公网安备 50010302002846号 重庆恺邸装饰设计有限公司