来源: KD室内设计事务所 www.kd007.cc
项目信息
项目名称:重庆融创竣爵堡
项目面积:500平方米
设计风格:美式风格
项目户型:联排中户
设计/软装:KD室内设计事务所

【闲暇时光·欢聚丨融创竣爵堡】
Leisure time: gather together and create the fort
印象是在今年九月份,天气还有点小热,业主夫妻二人找到了我们,夫妻俩都很有礼貌,给人温文尔雅的感觉,可能是同龄人的缘故,彼此之间也从慢热变得话题多了起来。
法式or美式?夫妻俩都难以取舍,在与设计师分析沟通后,割爱了法式。因法式讲究对称和严谨,而简单清爽的美式让人放松,会更适合一家人的居住氛围。
本案业主是一个温馨的四口之家,上有老人,下有一个乖巧懂事的女儿,但女儿现在在校住读,夫妻二人平时上班也忙,所以难得的周末才是一家人欢聚的时刻,本案的主题也呼之欲出【闲暇时光·欢聚丨竣爵堡】。
平面布置图/Layout plan

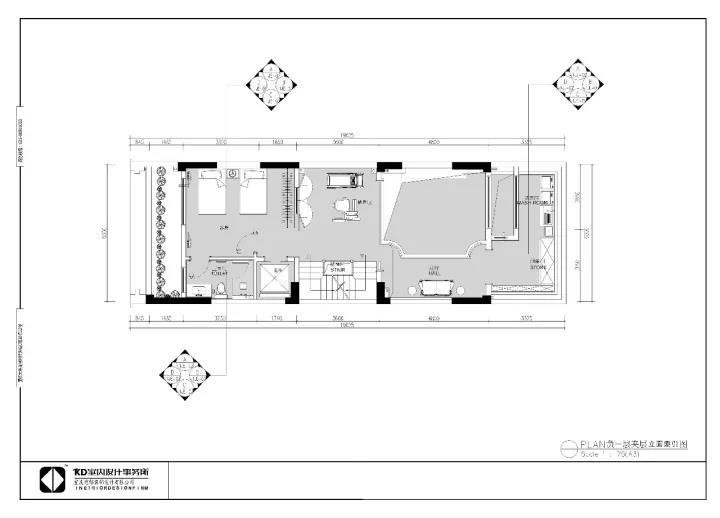
▵负一层平面图
因负一层层高较高,故设计加了一层,作为夹层。利用车库的空间加了电梯。

▵负一楼夹层平面图
空间整理了客房、健身房、洗衣区、储藏室、休闲区。

▵一层平面图
空间整理了厨房、餐厅、客厅、家庭起居室、后花园、门厅。

▵二层平面图
空间整理了女儿房套房、老人房套房、开放式书房。

▵三层平面图
空间整理了主卧、衣帽间、景观阳台、更衣室、阅读区、卫生间。
因三楼层高很高,考虑后加了隔层,做了一个人字形的有趣小阁楼,两边是储藏室,中间层高最高有2米8,是非常舒服的休闲区,休闲的时候可以在此慵懒的看书或放空自己。
效果图赏析/Effect picture appreciation
经典的美式色彩比较浓厚,这次我们却反而取之,采用木制本色系,加入不同深浅的蓝色材质为点缀。会客厅挑高,空间感更强,这样阳光会直射到负一层和负一层夹层区域,在阳光的照射下,暖色调会更适合一家人的居住氛围。

▵负一楼会客厅
电视背景墙融入经典美式的山墙元素,空间局部点缀一些彩色,更具层次感,营造一个低调放松的空间。

▵家庭起居室
拾级两步,到餐厅咯。
全屏的印花墙纸很吸睛,摆上烛台,典型的美式风展露无遗。中餐桌旁设计了一个西厨岛台,方便家里人少的时候吃简餐。

▵餐厅
局部采用硬朗的木制墙板,加上柔美的弧形水波纹软包,刚柔并济,空间的设计刚刚好。
在功能使用上,考虑了便衣区、女主人的梳妆台、以及男女主人的休息睡眠区,超大的景观阳台是主卧最大的亮点,营造一个阳光、松弛、有温度的空间。

▵主卧
这次没有用粉红色的公主房,而是用干净的白色和一点蓝色取代,定制的印花墙纸成为视觉中心,俏皮又不失真,安静清爽的空间会更适合。

▵女儿房
深浅色彩的交织,蓝色的软包背景消弱了卧室的严谨与沉默感。老人家对设计没有特别要求,只愿简单清净。

▵老人房
以温暖清爽的休闲美式贯穿始终,烘托温馨的居住氛围,陪伴才是一家人最温馨的时光。
对于晚归的人来说,回家开门的一瞬间,远远就闻到餐厅的饭香,所有的烦恼苦累都烟消云散,人其实很容易满足。也恰好应证了那句:Nothing is important than family.没有什么比家庭更重要。【闲暇时光·欢聚丨融创竣爵堡】。
陪伴是最长情的告白。
Company is the longest confession of love.
-THE END-
422m2 | 中式查看详情
80m2 | 其他查看详情
166m2 | 自然查看详情
KD荣誉
服务热线:(023)86905033 | 微信咨询:17726639972 | 公司官网:www.kd007.cc | 公司地址:重庆市江北区北滨二路阳光城天澜道11号3栋27楼
COPYRIGHT © 2020 ALL RIGHTS RESERVED 渝ICP备17002114号
渝公网安备 50010302002846号 重庆恺邸装饰设计有限公司