来源: KD室内设计事务所 www.kd007.cc

在精致主义盛行的当下,为什么侘寂风能被一眼就看出来,并且反其道而行成为家居届的“一股清流”?
侘和寂原本是两个词,wabi,侘,是简单朴素的意思。Sabi寂,则是穷厄之哀。后来引申而成随时间流逝而逐渐劣化的意思。但随着思想的改变,贫困和孤独是可以有积极的解释的,这种不完美是一种新的解放的契机,所以“侘寂”二字,就成为了远离尘世,追求自然清寂的一种导向。
宗白华曾在《美学散步》中提到,精神的淡薄是艺术空灵化的基本条件。艺术的空灵纳入到空间的气韵,居住的哲学时,是从意境到人格的创造,另生活在其中的人,从眼观世界的物质层面达至感受万物的精神层面,从而懂得生活,品味艺术,享受自由。
本案位于重庆江北城市圈西侧,集江岸、果岭、生态公园于一体,地理位置优越。业主是典型的三代同堂家庭,对生活、家有着不一样的追求,除了固定的功能外,希望增加休闲区域,偏爱自带古朴感的侘寂风。设计师将壮观的花园景色融入室内设计中,以光影为序,让人的情感与侘寂在空间中找到共鸣,享受岁月静好的生活。
01
扩大延伸感 挑高设计
负一层公共区域

负一层做了挑空,以此扩大视觉延伸感,保证负一楼采光。
规划为西厨、客厅、休闲区、花园。





挑高的空间,以光为引,以意为境,最大限度地延伸光进入空间的维度。大地色的微水泥作为墙面的底色,给空间历经岁月,却又定格空间与万物之间的最佳尺度。



客厅以舒适的灰色现代沙发搭配黑色茶几、藤编椅、落地灯,侘寂的氛围脱颖而出,满室的圆融,轻于形,魂于韵,以素雅营造生活的本真和古朴之美。


院中一抹绿,临窗而坐,静下来,晴可观月,雨可听雨。邀窗外温婉的风、和煦的光共处一室。
02
简素古朴 纯真生活
一层起居室

一层功能划分为花园、入户、餐厅、厨房以及书房,承担着就餐、娱乐等活动。


圆内容纳自我,圆外生长个性,入户的花园象征着业主心目中对自然的渴求,更体现发自本真的快乐和享受。



从入户望向厨房,视线通过材质的过渡流转,流线型的墙面、温馨雅致的材质,人在其中,建立起“被包裹”的安全感。



餐厅充满了多重趣味性,既可以与在厨房做饭的家人谈天说地,还可以与楼下客厅形成互动。考虑到生活习惯和使用方便,设计为开放式,在这里做饭即是一种享受。


设计师利用光影,为业主打造出轻松又有格调的书房区域。同时为了保证整体空间的通透性与书房的私密性,使用玻璃隔断进行空间划分。
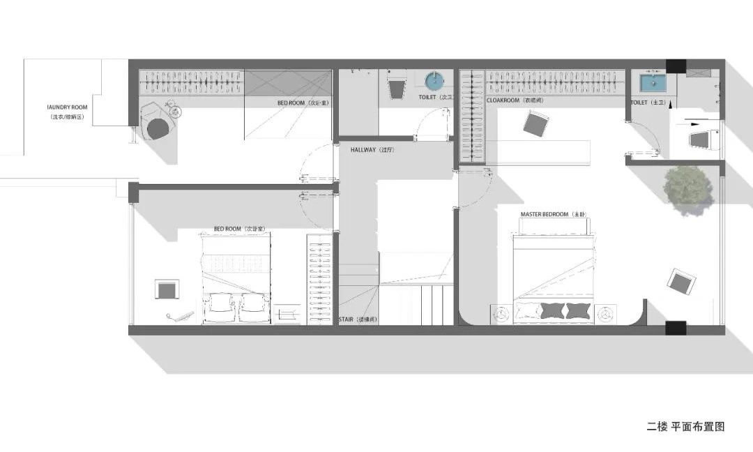
03
闲情偶寄,妙趣横生
二层居住区

二层规划为主卧、老人房、儿童房。主卧利用框景营造妙趣横生的家居氛围。




圆形的木制隔断,让休息区与衣帽间达到视觉上的隔而不断。既作为装饰,丰富了墙面,也让空间妙趣横生。


简素的淡雅里藏匿童真,有布艺可亲,观颜色跳跃,空间在幽静中有几分童趣,妙不可言。

打破传统的老人房装饰,用异形墙面装饰作为空间亮点,提高空间利用率。采用灯带装饰,让老人起夜更安心。

卫生间用木色和灰色再搭配黑色金属和玻璃隔断,没有给人压迫感反而带来一种隐秘的安全氛围,可以让人安全放松下来。
项目信息
Project information
—
The project style
全案设计
The project name
海悦蓝庭
The project address
重庆渝北
Design style
现代侘寂
The project area
220平米
Space design
KD室内设计事务所
Furnishings design
恺悦陈设
Engineering construction
恺邸工程
-THE END-
422m2 | 中式查看详情
80m2 | 其他查看详情
166m2 | 自然查看详情
KD荣誉
服务热线:(023)86905033 | 微信咨询:17726639972 | 公司官网:www.kd007.cc | 公司地址:重庆市江北区北滨二路阳光城天澜道11号3栋27楼
COPYRIGHT © 2020 ALL RIGHTS RESERVED 渝ICP备17002114号
渝公网安备 50010302002846号 重庆恺邸装饰设计有限公司