来源: KD室内设计事务所 www.kd007.cc

空间的一半依赖于设计
另一半则源自于存在与精神
居室极简之美
像秋日里飘浮的云
轻盈通透
在自由的空间里
纵享惬意生活
本案位于重庆江北区,房屋的面积160㎡,拥有大横厅和宽敞的内部空间,享受城市腹地的繁华与便捷。业主是一对热爱生活的夫妻,喜欢简约的风格,设计师用简洁的设计语言、天然的色彩与肌理塑造空间意境,在喧嚣的城市中,静享生活。
户型解析
HOUSE TYPE ANALYSIS

▲原始平面图
原始户型为四室两厅两卫,横厅面积较长,实用性上较浪费,儿童房的面积狭小,影响使用,业主希望增大公共区域的面积,同时可以改善儿童房的居住体验。

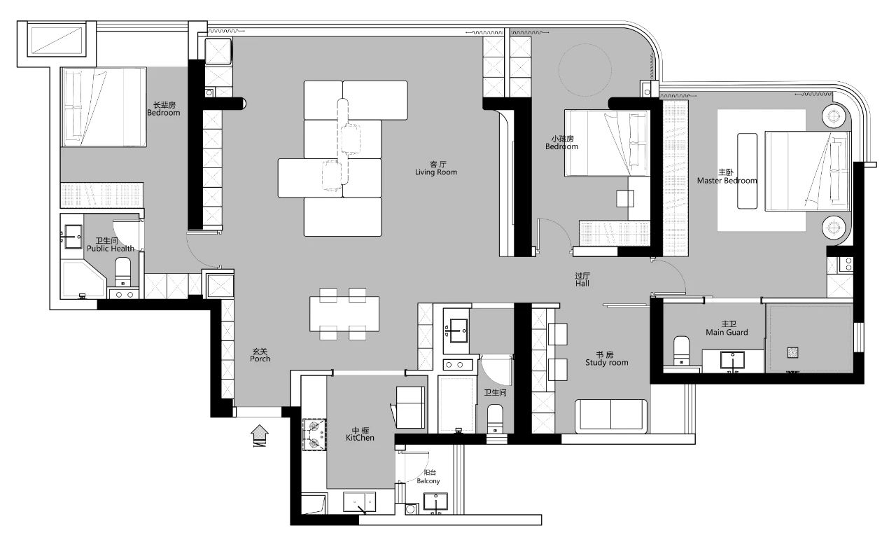
▲平面图
改造要点解析:
1、拆除阳台滑门,将阳台全部纳入为客厅空间,增加采光与通风。2、将原本的大阳台一分为二,一部分规划到儿童房,增加儿童房是使用面积,提高舒适度。
3、拆除书房的墙体,改为开敞式,丰富空间视觉。
4、改变主卧入户门的位置,让狭小的过道变得宽敞。
客厅
Living Room

把阳台并入客厅后,空间变得开阔敞亮,设计师用简约纯粹的语言,赋予空间生命力。在大量留白的氛围里,黑色的茶几和双向沙发,为空间增添了一份静谧与甜蜜。


电视背景墙、书房简洁的线条与空间浑然一体,与茶几相互呼应,于简约中透露着生活的优雅。
卧室
Bedroom

主卧的空间设计,回归生活的本质需求,延续空间留白的基调,沉稳优雅的灰色打造出舒适安稳的睡眠环境。
「TRUST」
· 致 谢 业 主 ·
再次感谢如此优秀的客户通过严格筛选,最终选择信任我们KD人来帮助他们实现美好的居住梦想。
我们始终坚信,我们一定是一群能创造更多美好空间、美好生活的KD人。从过去、到现在、期未来,以原创设计,敬美好生活。让众多热爱生活之人,因恺邸生活更美好幸福。
项目信息
Project information
—
The project name
卓越皇后道
The project address
重庆江北区
The project area
160平米
The design of style
现代极简
Design agency
KD室内设计事务所
恺邸装饰
— END —
422m2 | 中式查看详情
80m2 | 其他查看详情
166m2 | 自然查看详情
KD荣誉
服务热线:(023)86905033 | 微信咨询:17726639972 | 公司官网:www.kd007.cc | 公司地址:重庆市江北区北滨二路阳光城天澜道11号3栋27楼
COPYRIGHT © 2020 ALL RIGHTS RESERVED 渝ICP备17002114号
渝公网安备 50010302002846号 重庆恺邸装饰设计有限公司