来源: KD室内设计事务所 www.kd007.cc










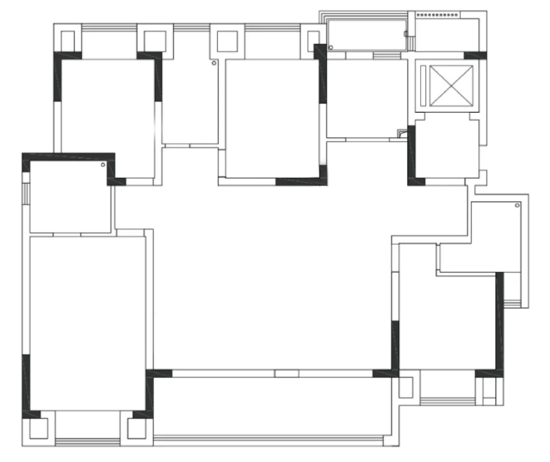
▲原始平面图
原始户型为四房三卫两厅,厨房面积较小,房间多但不满足业主的套房需求。

拆除阳台滑门,客餐厅一体化,营造开阔大气的空间氛围
将厨房扩出来增加整体性和操作面,减少浪费空间
打通主卧与一个次卧,形成套房,提高居住的舒适度
儿童房改成套房,增加私密性的同时面积得到扩大
其中一个卧室改成书房和公卫,与整个公区融合贯通

设计师将客厅、餐厅、阳台联通,整个空间变得更宽广、更整体。深邃的色调更显质感,大理石地面与木色墙面融为一体,无主灯的设计,在视觉上倍加开阔简洁。
波浪形的木作背景与岩板的质感,以环绕在空间的绿植为中心,从自然界中延伸的灵感转化为艺术的元素,巧妙的加入到每一个空间场景中,将人文情怀与空间相互融合。打造出一个让人沉浸到空间环境。
Italian style decoration designers connect the living room, dining room, and balcony, making the entire space wider and more integrated. The deep color tones enhance the texture, and the marble floor blends with the wooden walls. The design without a main light makes it visually more open and concise.
The wavy wooden background and the texture of the rock slab, centered around the green plants surrounding the center of the space, transform the inspiration that extends from nature into artistic elements, and cleverly incorporate it into every spatial scene, blending humanistic sentiments with the space. Create an immersive spatial environment.


电视墙与内扩的阳台,用了建筑里框景的方式,让一整个区域像个围合,用相同的材质和颜色贯穿整个空间,达成简洁统一的视觉效果,空间影响亦开亦合,相互交织,细腻如画,壁炉的融入使得意式的气质得以淋漓尽致的展现。

Open design enriches daily life. In the overall space with gray as the main color tone, local lighting and dining island integration make the space more textured, achieving visual enjoyment and making dining more ceremonial.
05
效果图-次卧
BEDROOM

The bedroom atmosphere is deep and peaceful, with a relaxed atmosphere created by the overall wooden color and open bathroom space. The suspended bed and transparent bathroom area flow the charm of the mansion in the lines of the walls and wood. Soft lighting casts layers of light and shadow, making every corner shine brightly and luxurious and comfortable.
422m2 | 中式查看详情
80m2 | 其他查看详情
166m2 | 自然查看详情
KD荣誉
服务热线:(023)86905033 | 微信咨询:17726639972 | 公司官网:www.kd007.cc | 公司地址:重庆市江北区北滨二路阳光城天澜道11号3栋27楼
COPYRIGHT © 2020 ALL RIGHTS RESERVED 渝ICP备17002114号
渝公网安备 50010302002846号 重庆恺邸装饰设计有限公司